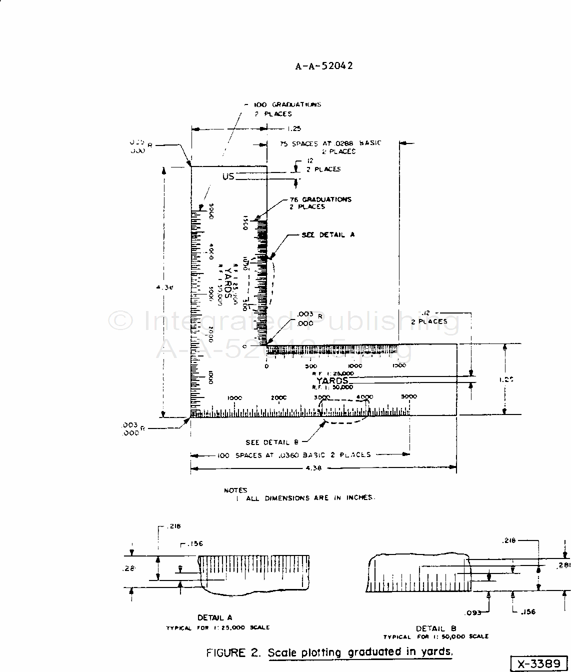
A-A-52042 Scale, Plotting Coordinate: Plastic, Graduated In Yards And Meters In 1:25000 And 1:50000 ScalesThis description covers a flat, double-sided plastic, L-shaped coordinate scale, graduated in yards and meters in 1:25000 and 1:50000 scales with one side marked in yards and the opposite side marked in meters. The scale is intended to be used for reading and plotting coordinates on either scale maps, or map substitutes, having either a 1000 meter or 1000 yard grid.